X This website or third-party tools used in it uses cookies useful for the proper functioning of the site and for the purposes described in the cookie policy. If you want to learn more or opt out of all or some cookies, see the cookie policy.
By closing this banner, scrolling this page, clicking on a link or continuing navigation in any other way, you consent to the use of cookies. Accept
Janik Partner

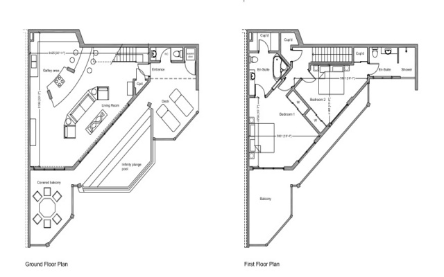
Stingray - Two Bedroom Luxury Villa

Ocean Front - Fully Furnished

$900,000

Multiple Units Available

This newly finished and furnished villa, is located directly on the ocean front looking out over the Caribbean ocean with amazing sunsets, facing west and close to resturants and supermarkets. The villa offer private pools, fully equipped European designer kitchen, laundry facilities and outdoor dining on private terrace. Twenty four hour concierge service is offered and a private chef and maid service can be arranged. Free high speed wifi and cable TV is offered throughout.

  • Two ensuite bedrooms
  • Floor to ceiling glass walls allowing for magnificent beachfront views
  • Oversized en-suite bedrooms with indoor/outdoor terraces and gardens and walk-in wardrobes
  • Floating edged infinity edged wrap around pools
  • Huge covered and uncovered terraces for outdoor living
  • Private dining Gazebos and sundecks over the beach
  • Barracudas feature a Cabana offering either a fourth bedroom, separate apartment, or entertainment room
  • European designer kitchens and bathrooms
  • Hi speed Wi-fi throughout

Freehold Purchase - contact Janik Partners at info@janikpartners.com